Imagine 43

Teren Duplex/Casa individuala cu autorizatie, in Popesti

ID: FX58678 Popesti, Central 16
89.990€ + TVA
Descriere
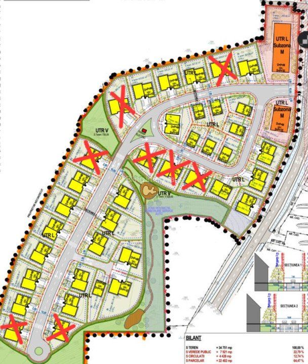
Vă propunem spre vânzare terenuri destinate construcției de unități duplex și case individuale, situate la intrarea în Popești, într-un viitor ansamblu rezidențial.
Detalii teren:
Suprafață totală: 34.700 mp
PUZ aprobat și parcelare realizată
Parcelele disponibile:
De la 350 mp utili pentru case individuale
Minimum 550 mp pentru duplexuri
Ansamblul rezidențial va cuprinde:
68 de unități locative, dintre care:
60 de duplexuri
8 case individuale
Avantaje:
Asistență pentru autorizarea parcelelor
Zonă în plină dezvoltare, cu potențial ridicat de investiție
Acces facil și infrastructură în curs de amenajare

Pentru detalii suplimentare și vizionări, vă stăm la dispoziție!
Id extern: P806
Caracteristici
  • ID:FX58678
  • S. teren:550.00 mp
  • Front stradal:20.00 m
  • Clasificare teren:Intravilan
  • Regim inaltime:D+P+1
Specificatii
Curent
Apa
Canalizare
Gaz
Localizare
Vicentiu Duță Sr.
REALTOR®️, SRS, ABR, RENE, Co-fondator CaseVechi.ro
Esti interesat de aceasta proprietate ?
Proprietati similare
TOP 0% comision Rep. exclusiva Imagine 3516
VANZARE TEREN AGRICOL, GALAȚI, APROAPE RAR
Galati, Est 85.000€
42500mp
0% comision Rep. exclusiva Imagine 3723
Teren de vânzare în Mogoșoaia – Strada Crinului, lângă lac | Lot ideal pentru ca
Mogosoaia, Exterior Sud 100.000€
582mp
0% comision Rep. exclusiva Imagine 3764
Teren pentru construcție casă cu utilități in Ciolpani-Piscu str. Olarilor
Piscu, Nord 78.800€
3132mp
Exclusivitate Imagine 3776
Teren 892 MP SITUAT IN MOGOSOAIA ILFOV
Mogosoaia, Central 85.000€
892mp
0% comision Exclusivitate Imagine 2993
Teren Intravilan, Strada Colonia Sopor CJ 400482
Cluj-Napoca, Borhanci 100.000€
4488mp
0% comision Rep. exclusiva Imagine 2751
Teren intravilan 1300mp Baciu - Sun Garden
Baciu, Fara zona 99.900€
1300mp