Imagine 43

Teren cu autorizatie 1350 mp | S+P +3 | Zona Pipera – Rond OMV

ID: FX64068 Voluntari, Central 36
999.999€
Descriere
Propun spre vânzare teren intravilan cu suprafața de 1350 mp la drum de acces, situat în Pipera, într-o zonă în plină expansiune foarte aproape de Pipera Plaza, cu autorizație de construire valabilă.
Proiectul aprobat permite edificarea unei clădiri S + P + 3 , ideală pentru dezvoltare rezidențială,


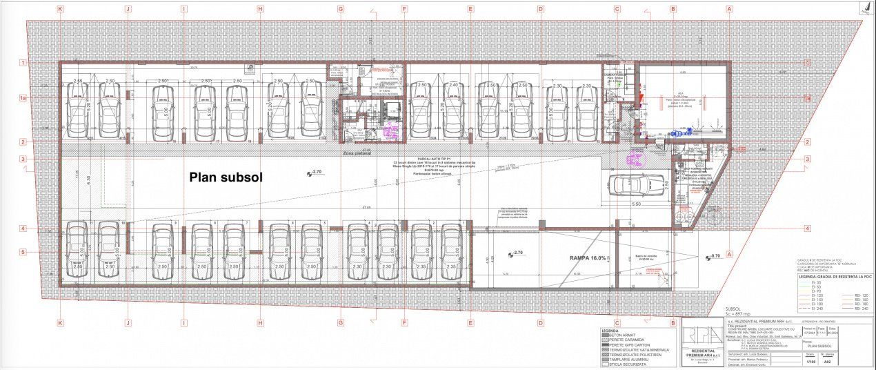
Detalii importante:
* Subsol - 897 mpc
* Parter - 529 mpc
* Etaj 1 - 538 mpc
* ⁠Etaj 2 - 538 mpc⁠
* Etaj 3 - 527 mpc
Total 🟰 3029 mpc



Caracteristici
  • ID:FX64068
  • S. teren:1350.00 mp
  • Front stradal:70.50 m
  • Nr. fronturi:1
  • Clasificare teren:Intravilan
  • Regim inaltime:S+P+3
Specificatii
Curent
Apa
Canalizare
Gaz
CATV
Fibra optica
Utilitati in zona
Localizare
Vicentiu Duță Sr.
REALTOR®️, SRS, ABR, RENE, Co-fondator CaseVechi.ro, Co-fodator Terenuri-Dezvoltare.ro
Esti interesat de aceasta proprietate ?
Proprietati similare
0% comision Exclusivitate Imagine 3734
Teren intravilan de vanzare Tunari Ilfov
Tunari, Nord 996.080€
12451mp
0% comision Rep. exclusiva Imagine 4043
Teren Intravilan 10,000mp Metalurgiei Jumbo - Piata de Gros D Crisului
Bucuresti, Metalurgiei 980.980€
10010mp
0% comision Rep. exclusiva Imagine 2888
Teren Intravilan 10,000mp Metalurgiei Jumbo - Piata de Gros
Bucuresti, Metalurgiei 980.980€
10010mp
0% comision Exclusivitate Imagine 766
Teren dezvoltare Rezidentiala/Office/Mixta - Banu Manta-Titulescu
Bucuresti, Banu Manta 927.000€
708mp
0% comision Rep. exclusiva Imagine 864
OPORTUNITATE INVESTITIE- TEREN- BLD. PIPERA
Bucuresti, Pipera 900.000€
1000mp
0% comision Rep. exclusiva Imagine 3399
DASCALU, LOT 19.170 MP!
Dascalu 50€/mp
19170mp